Inicio
Estudio
Nosotros
Tarjetas
Media
Obras
Contacto
English
Inicio
Estudio
Nosotros
Tarjetas
Media
Obras
Contacto
English
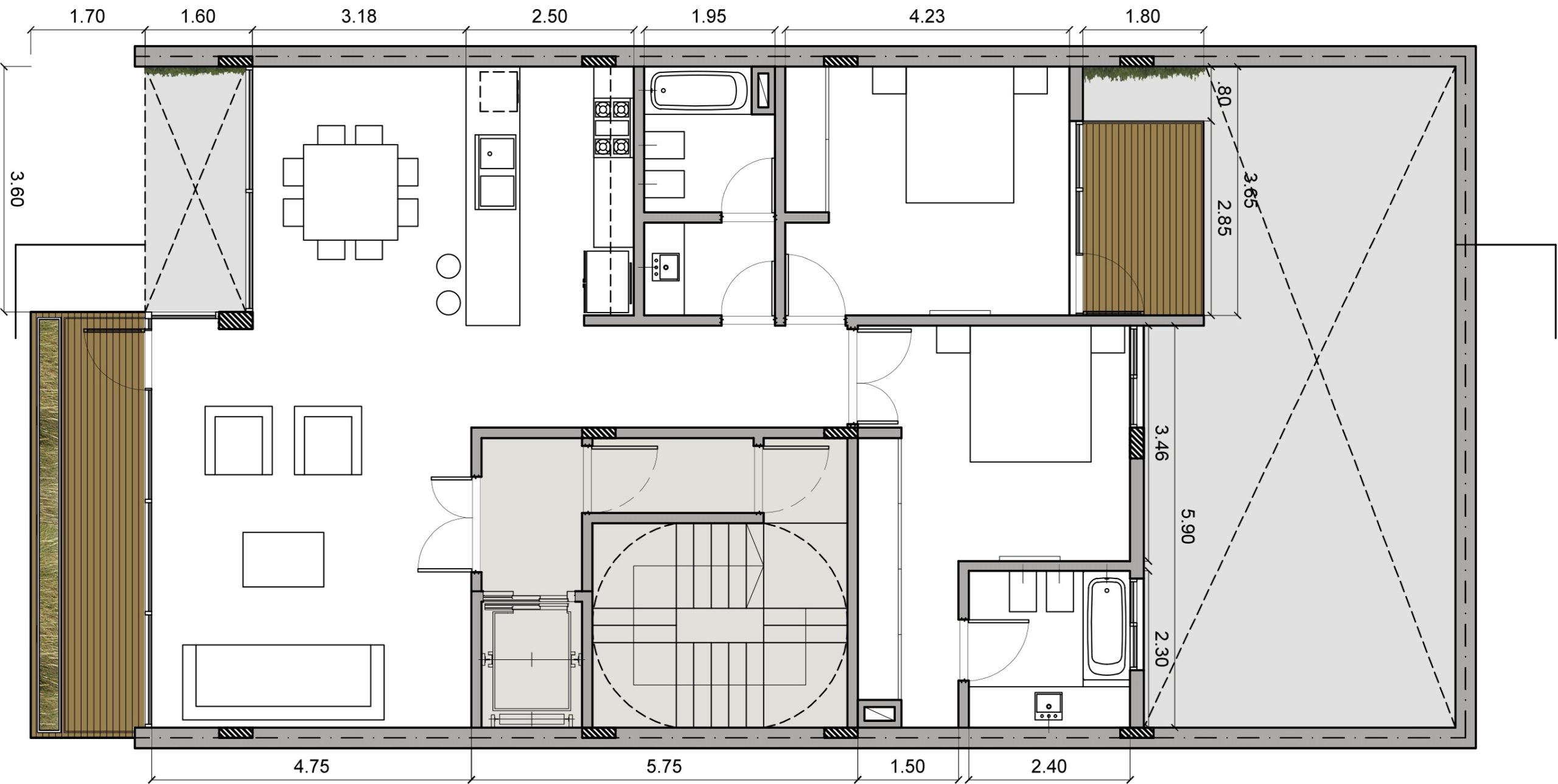
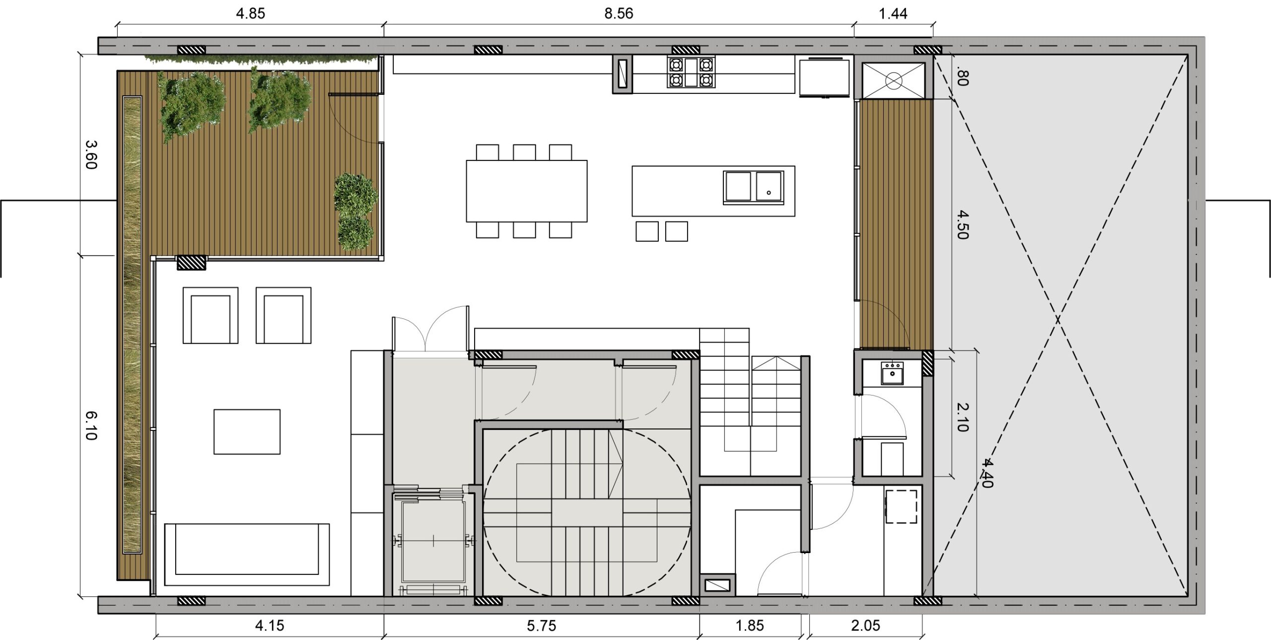
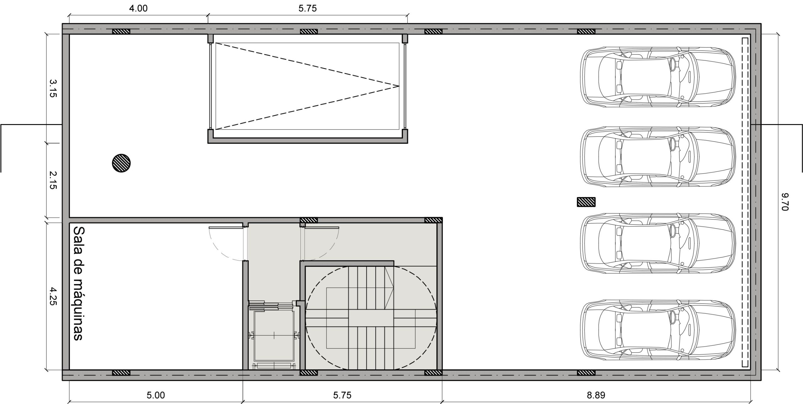
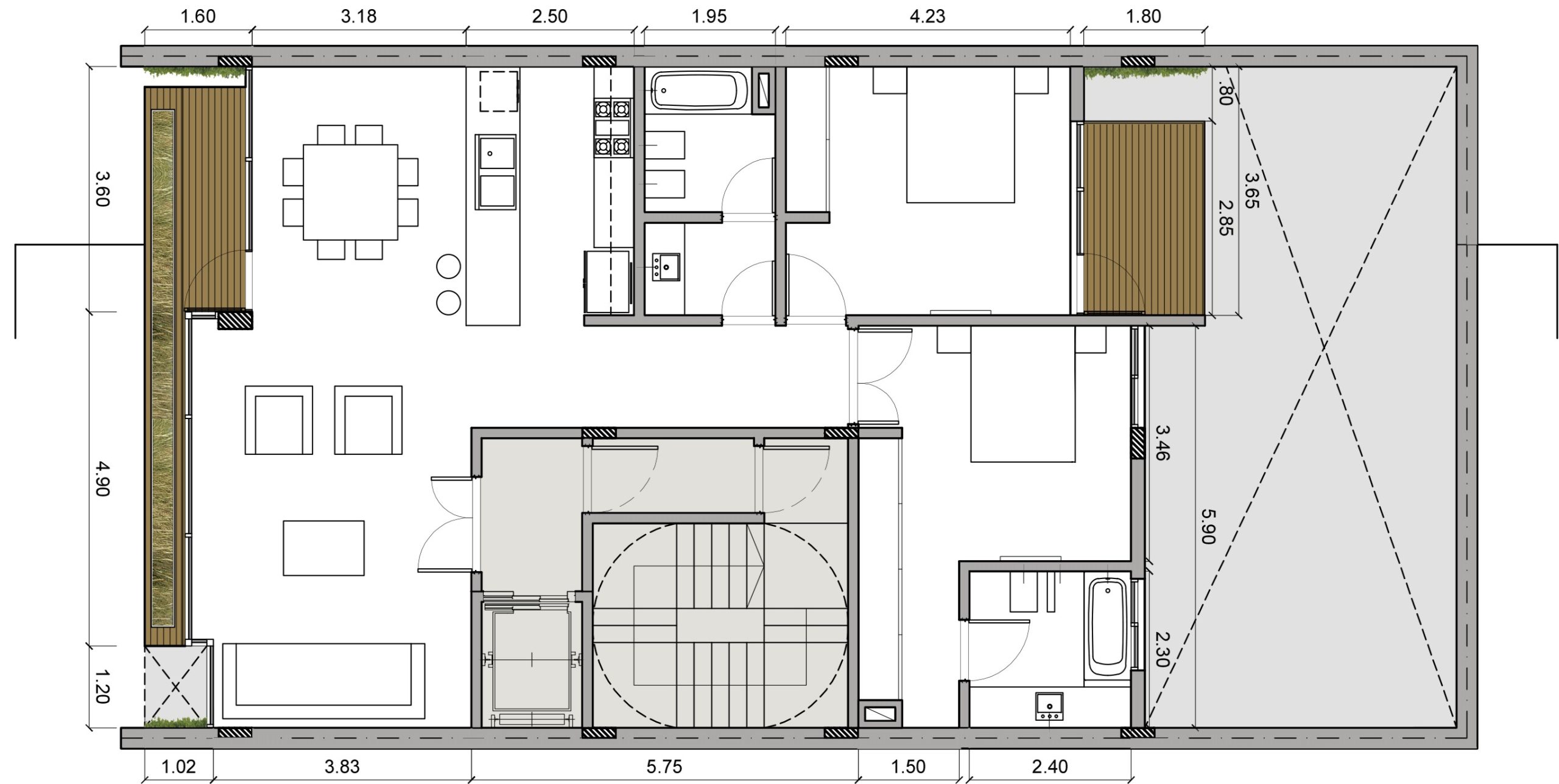
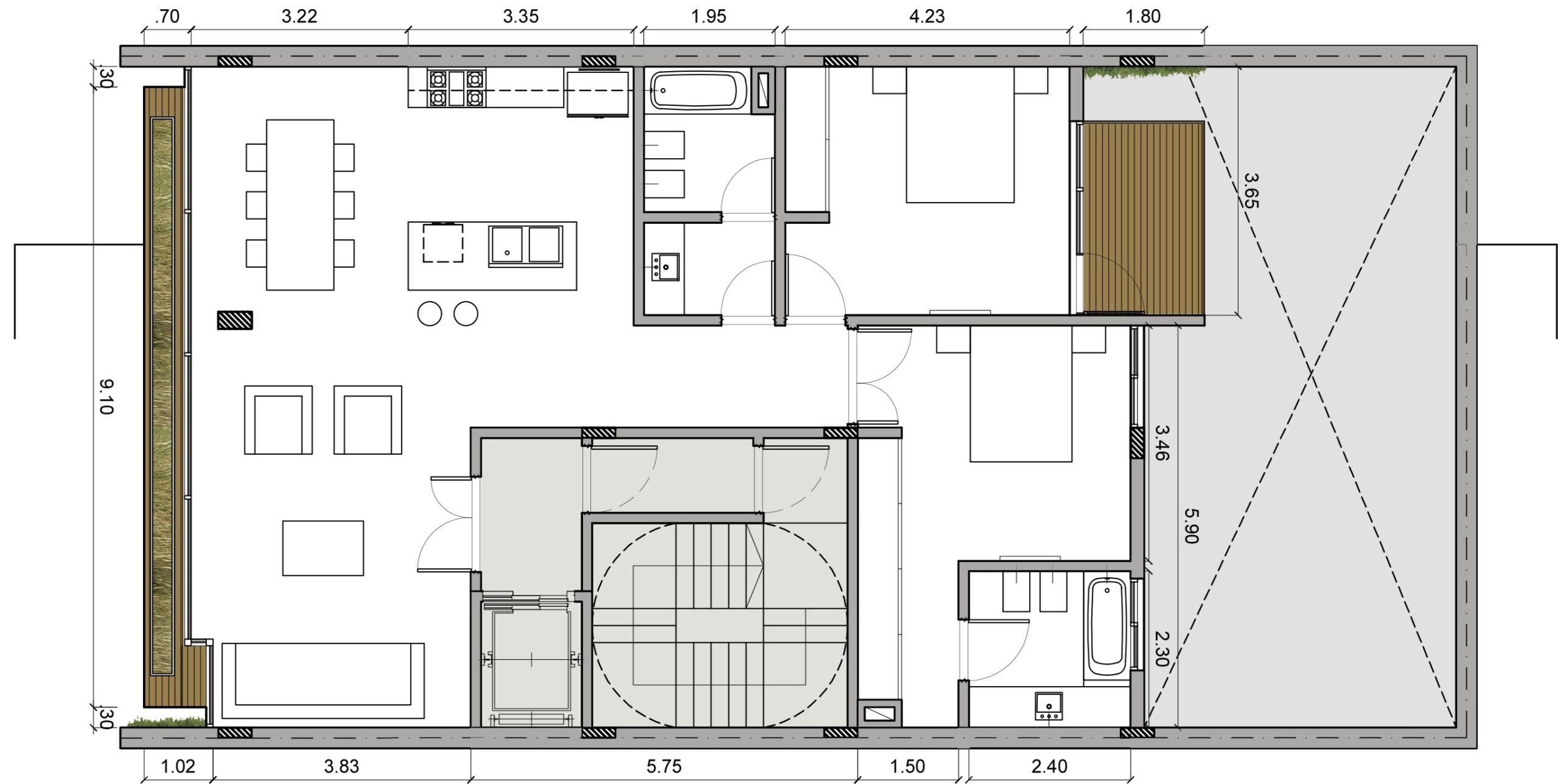
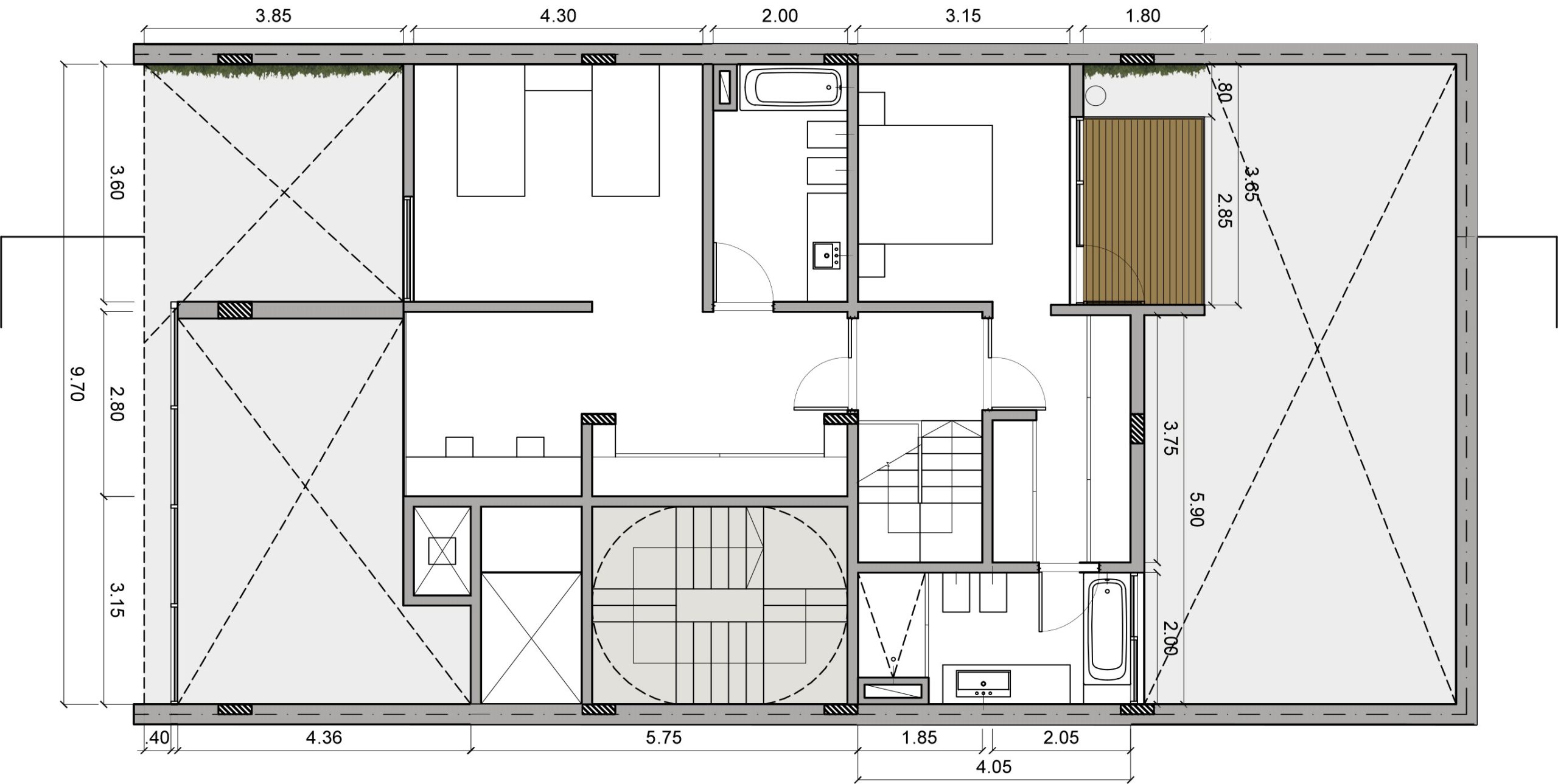
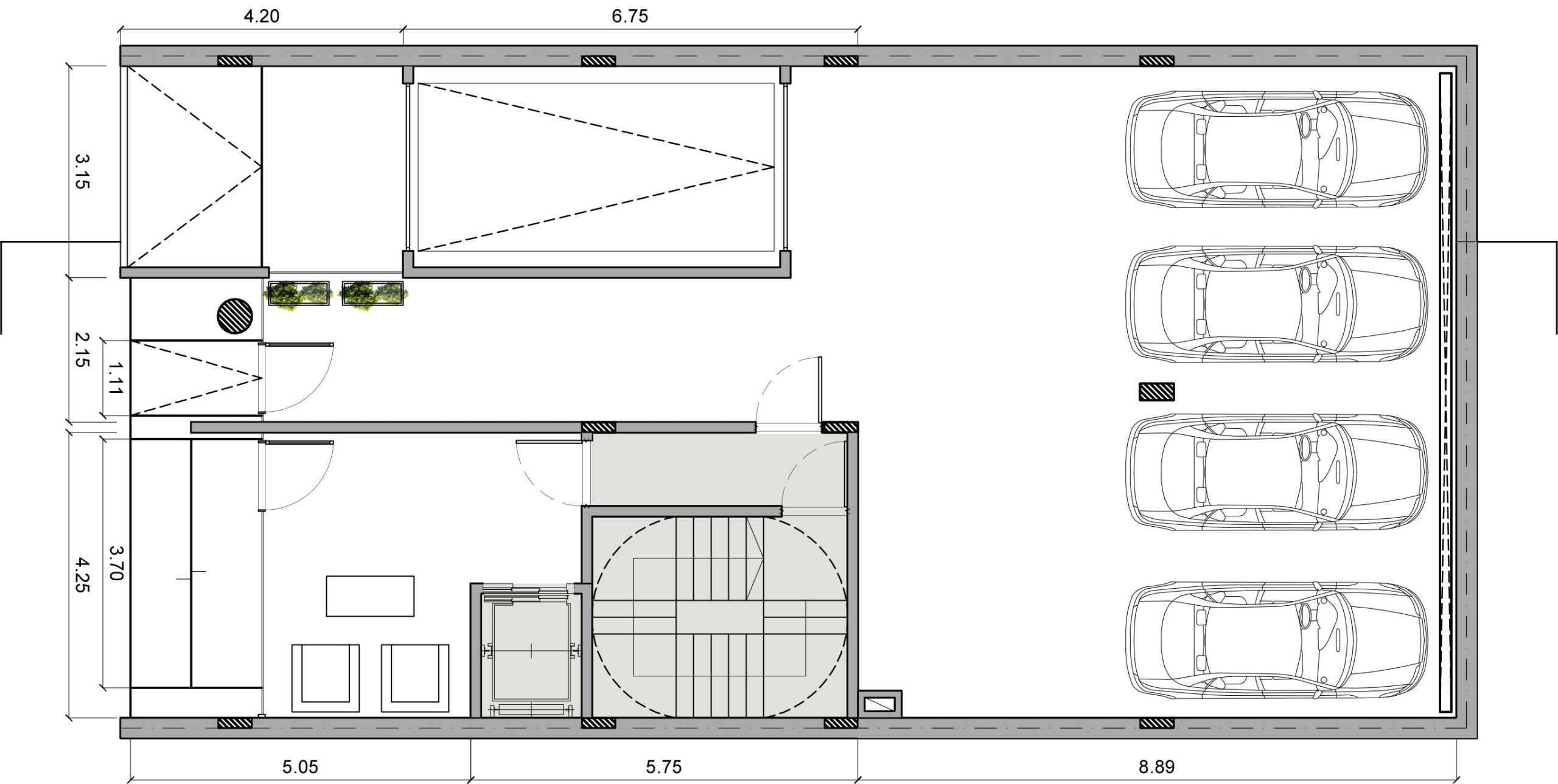
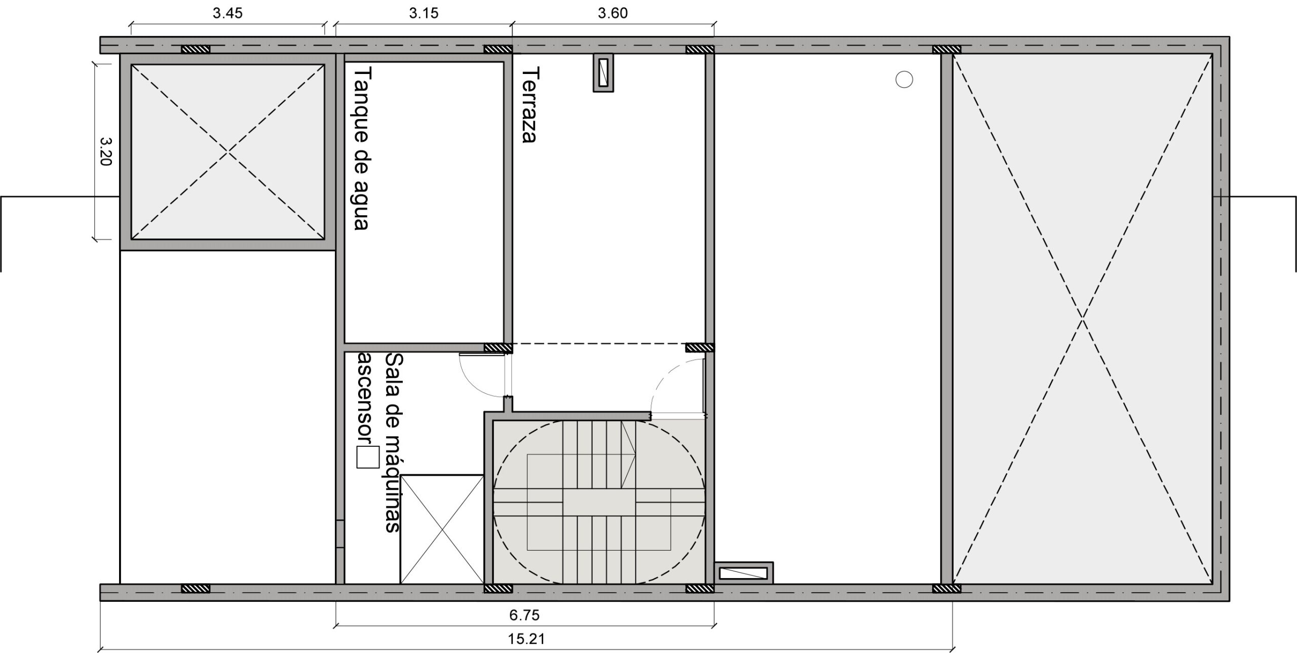
Edificio Cero
Vivienda
Category
Viviendas
Tags
Viviendas
About This Project
EIDIFICIO CERO
2014
Share
Proyectos Relacionados
ver
Santos Dumont 3772
Destacados, Viviendas
ver
Estadio Luz
Comerciales, Destacados
ver
La Algodonera
Destacados, Viviendas
ver
Jose Cubas 4131
Destacados, Viviendas