Santos Dumont 3772

Residential
Category
Viviendas
Tags
Destacados, Viviendas
About This Project

Santos Dumont 3772

2023

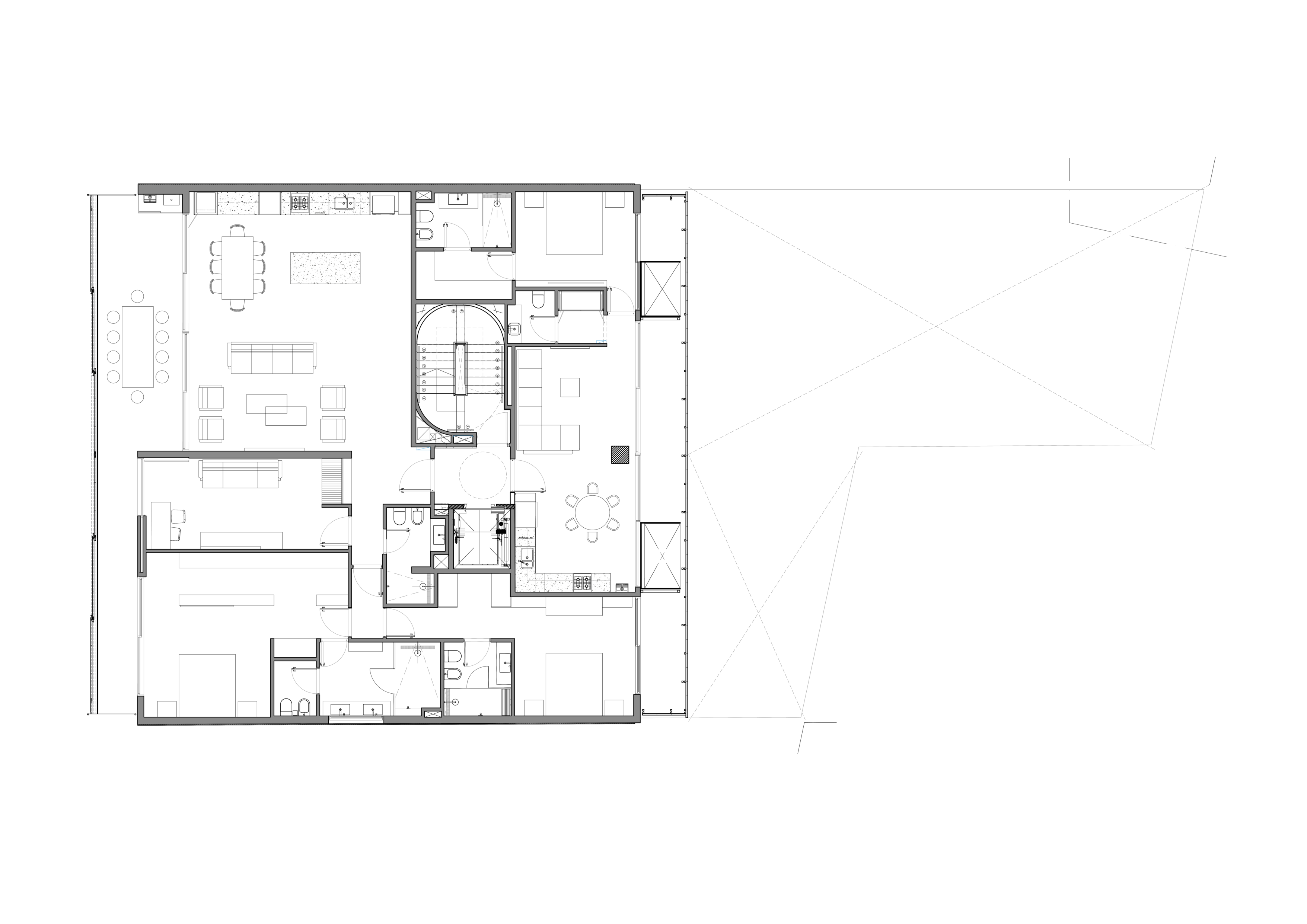
En el entramado urbano, donde cada vida sigue su propio ritmo, el Edificio Santos Dumont se erige como una colección de identidades únicas y una suma de historias que configuran doce universos distintos. Cada nivel traduce una forma de habitar, un estilo y una interpretación personal del hogar, articulados en una estructura que respeta la individualidad de cada espacio sin perder la cohesión del conjunto. Más que un edificio de viviendas, Santos Dumont es una composición de doce casas en altura, diseñadas con flexibilidad para adaptarse a las necesidades específicas de sus habitantes y servir como lienzo para proyectar sus visiones.

La disposición y soluciones espaciales generan atmósferas únicas que coexisten en equilibrio, mientras la relación entre interior y exterior se potencia a través de amplios ventanales y espacios permeables al entorno. Cada vivienda respira, permitiendo que el entorno penetre y que las historias individuales se entrelacen en un diálogo entre lo funcional y lo estético. Así, Santos Dumont se presenta como un reflejo de las múltiples formas de habitar la ciudad contemporánea, donde cada espacio narra una historia singular y reafirma la arquitectura como vehículo de expresión y convivencia.