Edificio Dorrego 2085

Empresas
Category
Empresas
Tags
Destacados, Edificios, Empresas
About This Project

DORREGO 2085

Oficinas / 2015

El proyecto ha sido planteado desde dos aspectos básicos su forma y su funcionalidad.

Un edificio de carácter austero y funcional, con una geometría sencilla que acentúa el carácter de esquina y remata en un cuerpo más pequeño.

El proyecto plantea dos temas bien diferenciados en su volumen, dos caras diferentes para la misma situación de esquina, la del lado corto y del lado largo. Esto dio origen que ese mismo condicionamiento fuera tomado para cada una de los frentes diseñando sus partes como unidades diferenciadas en si mismas. De tal modo Las Fachadas, el Local y el Hall de Acceso fueron pensados de modo independiente, sin que ello implique perder la idea de conjunto en el edificio

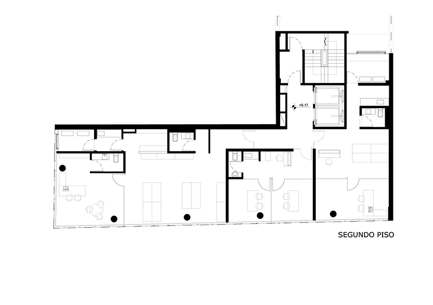
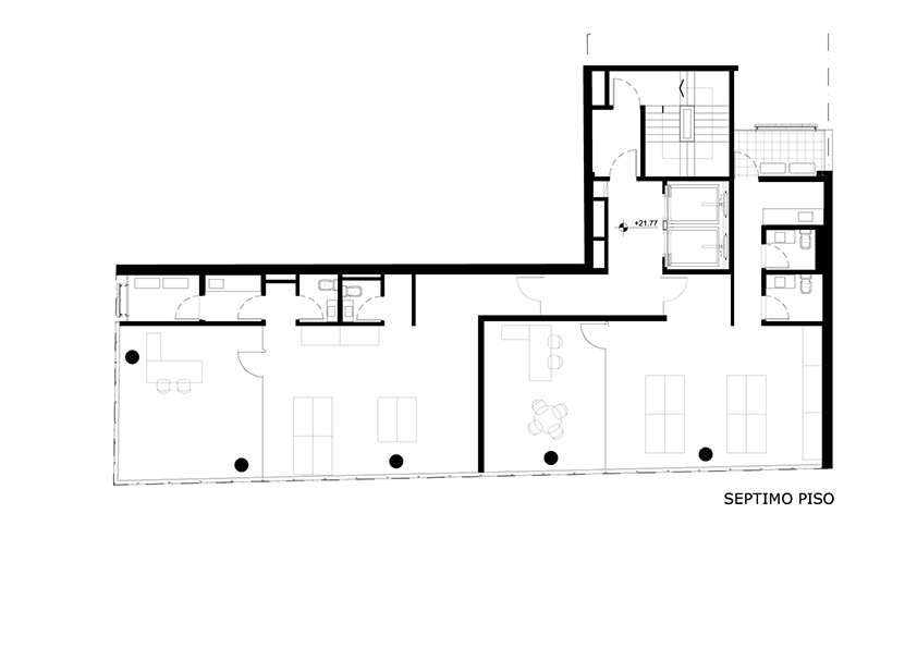
Con superficies de 200 m2 libres de oficinas, que permite tener gran flexibilidad en el armado de sus plantas, las mismas están desarrolladas a lo largo de todo el frente con un aventanamiento repetido y continuo, que brinda una buena iluminación, ventilación natural y excelentes vistas.